EJZ系列自吸污水泵是参照欧洲标准的性能和尺寸改进设计而成,该系列泵具有自吸能力,泵体设计有修理孔,便于修理与清污,另设有耐磨板,提高了水泵的使用寿命。该系列泵可用于抽取含有磨蚀性固体颗粒的混合液体,其处理的液体粘度值最高可达到50mm2/s,广泛应用于工业、城市工程、海运、废料处理等领域,输送各种中性、碱性类清洁或不清洁液体。如含沙粒、泥浆或其它悬浮颗粒类液体、低粘度的石油产品;石灰乳、氢氧化钠,以及各类清洗、冷却、循环、烟雾净化或医疗急救产生的废水。
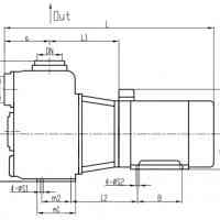
EJZ系列自吸污水泵是EJ系列水泵基础上的派生产品,采用电机轴插入泵轴内孔直接驱动,泵轴与电机轴较高的同轴度及叶轮优异的动静平衡,保证泵的平稳运行。采用IEC标准B34三相电机,该系列泵与EJ系列泵相比,轴向长度明显缩短,占地面积较少。
EJZ系列自吸污水泵结构简单,性能可靠,体积小,重量轻,自吸高度最大能达到7m,能耗低,使用维修方便。
Wholesale Professional Design Single Stage .5kw Mortar Servo Water Pump
Product Description
| Pump type | EJZ series close-coupled single stage self priming sewage pump |
| Design Standard | European standard BS |
| Structure | Semi-open impeller,Single-Stage,Self-priming,Maintenance Hole,Wear Plate |
| Flange | Pump casings are casted with flanges;Screw flange for discgarge size<100mm |
| Motor | IEC standard motor |
| Casing | Cast Iron standard,Ductile Iron options on request |
| Impeller | Ductile Iron standard,Bronze/ASTM304/ASTM316 options on request |
| Shaft | ASTM1045 standard,ASTM304/ASTM316/ATSM420 options on request |
| Shaft Seal | Mechanical Seal |
| Discharge Size | DN40~100mm |
| Head(H) | 4~40m |
| Flow Rate(Q) | 4~145m3/h |
| Self-priming Head | 3~7m |
| Max Solids Size | 50mm |
| Speed | 1450~3600rpm;lower speed(on request) |
| Max Temperature | 80°C(standard) |
| Conveying Medium | Neutral,acid or alkall clean or dirty liquids,containing sand,mud or solids in suspension |
| Appliactions |
Waste water treatment plant,washing,cooling,circulation,smoke scrubbing,marine-ballasting&bilge,liquid transfer:clean or dirty water,mixed liquids,abrasive or corrosive liquids,low viscosity of petroleum products,etc. |


